5 Bedroom House - Detached For Sale
Woodford Lane, Mottram St Andrew

Guide Price £1,999,950 | 5   3   4  
Share:
A picturesque 16th Century country residence situated in an idyllic rural position with gardens and grounds extending to just over 1.6 acres.

Dating back to the late 16th century The Bents is an impressive family home exuding charm and original features including; Timber Frame, wattle and daub, Kerridge Stone Slate Roof, mullioned windows and exposed beams and trusses.

The house has been immaculately maintained by the current owners and offers spacious and versatile accommodation throughout.

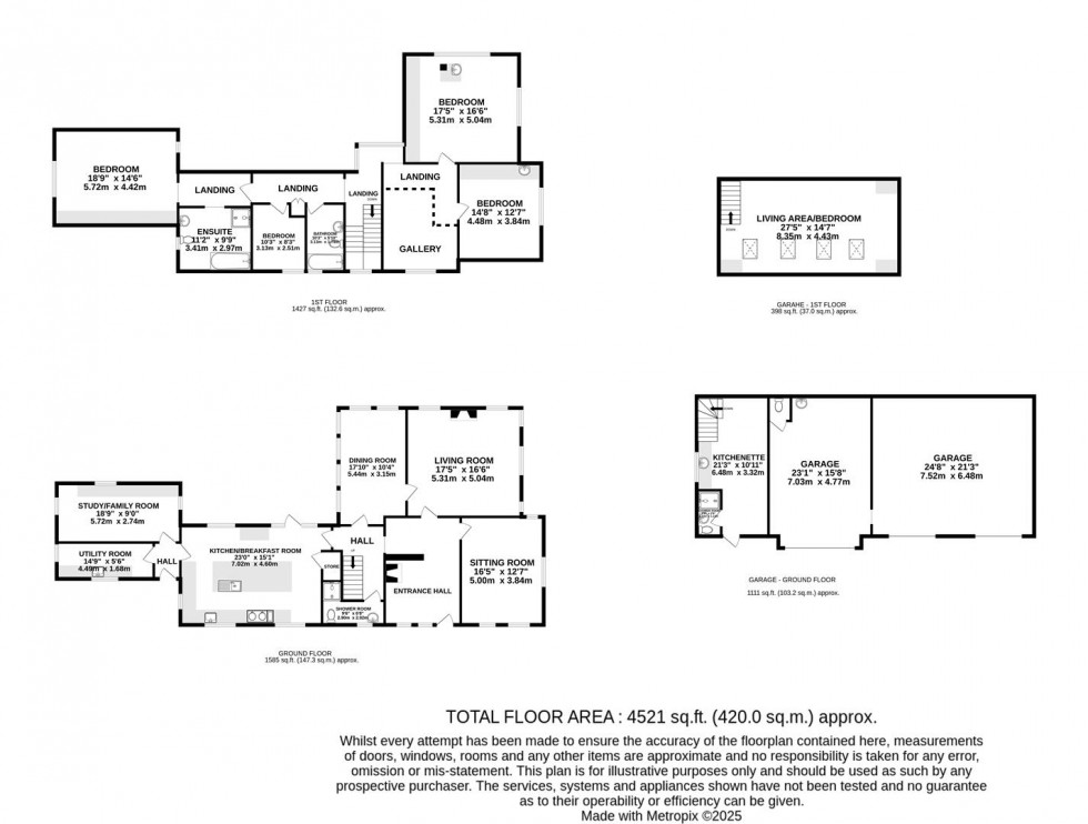
A feature of particular note on the ground floor is the galleried entrance hall with central fireplace and stone flagged flooring. From the entrance hall is the drawing room (with central fireplace), sitting room, dining room, shower room and large breakfast kitchen with traditional shaker units, large central island, granite worksurfaces, AGA and integrated appliances. From the kitchen is the rear hall which accesses the utility/boot room and the study/family room.

To the first floor is a large principal bedroom suite with dressing area and en-suite bathroom (with underfloor heating). There are three further double bedrooms and the family bathroom.

Externally the property stands centrally within its mature gardens and grounds of 1.6 acres. The grounds consist of manicured lawns, specimen trees, two water features and large York stone patios all enjoying stunning views across the neighbouring countryside. The main gardens to the rear of the house boast a sunny south easterly aspect.

Approached by a long private driveway which leads to a set of electric gates. There is ample parking and a detached triple garage and a self-contained annexe “Bents Cottage” with a kitchenette, shower room and large bedroom suite on the first floor.

The Bents occupies an idyllic rural position within Mottram St Andrew surrounded by open countryside. The centres of Alderley Edge, Wilmslow, Prestbury and Bramhall are all within easy reach which offer everything for day-to-day needs, excellent schooling and rail links to Manchester and London.

Rarely does a property of this calibre come to the market and a viewing is essential to appreciate the charm and appeal of such a unique country home.

Important Information

What 3 Words – ///musician.stall.captive

Council Tax – H

EPC Rating – F (29/53)

Tenure – Freehold

Heating: LPG Fired Central Heating

Services: Mains Electric & Water, Drainage via septic tank

Parking: Driveway & Garage

The title contains covenants - Please contact the office for further information.

Flood Risk*: Very low risk of flooding.

Broadband**: Broadband available at the property

Mobile Coverage**: Mobile coverage with main providers (EE, O2, Three & Vodafone).

* Information provided by GOV.UK
**Information provided by Ofcom checker

The information isn't guaranteed. Andrew J Nowell take no responsibility for inaccuracies and advise potential buyers to do their own checks before committing to purchase.

Floorplan for Woodford Lane, Mottram St Andrew
EPC Graph for Woodford Lane, Mottram St Andrew

Book a Viewing


Get in touch to discuss this property

phone 01625 585905

email mail@andrewjnowell.co.uk

MORE DETAILS

PRINT DETAILS

sold by Andrew J Nowell

Looking to sell or let your property?

REQUEST A VALUATION