4 Bedroom Barn Conversion For Sale
Davenport Mews, Davenport

Guide Price £895,000 | 4   3   2  
Share:
A spacious and characterful barn conversion situated in an idyllic rural position a short walk from the Swettenham Arms.

Old Barn forms part of a period barn believed to be constructed in the late 1700’s and converted in the 1970’s into three individual properties.

The property has been immaculately maintained by the current owners and offers spacious and well-balanced accommodation throughout.

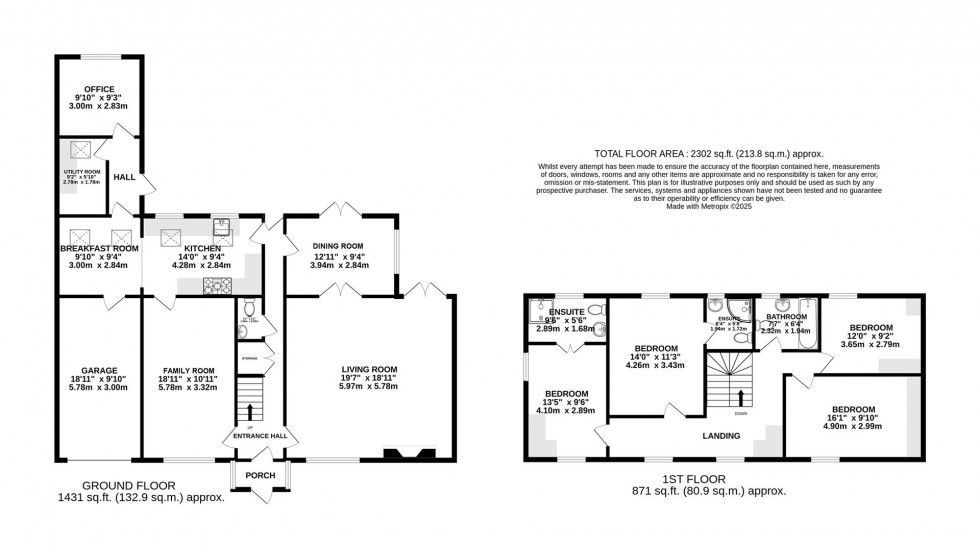
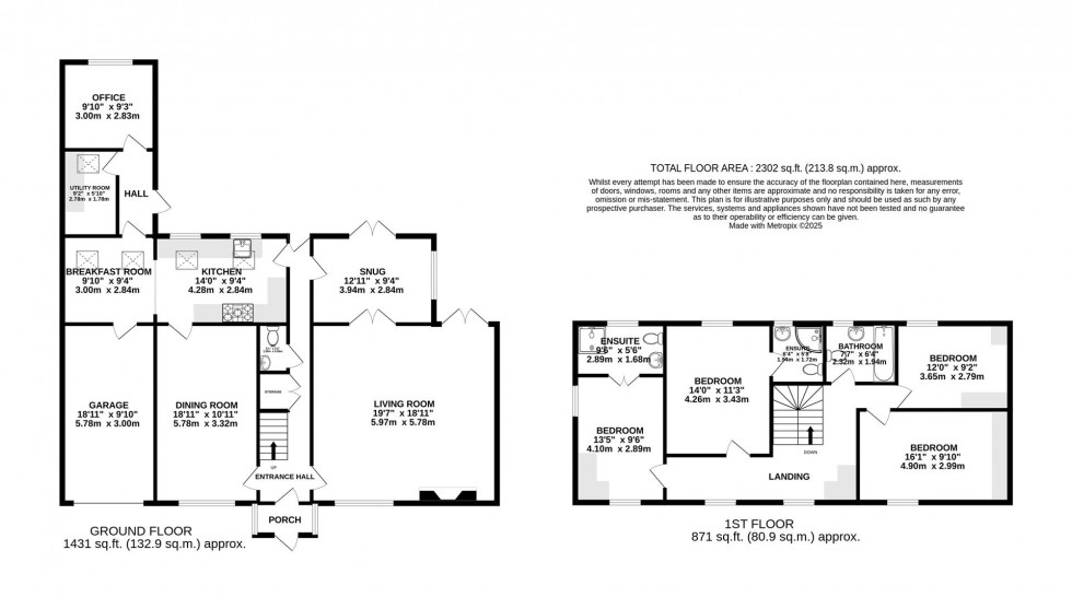
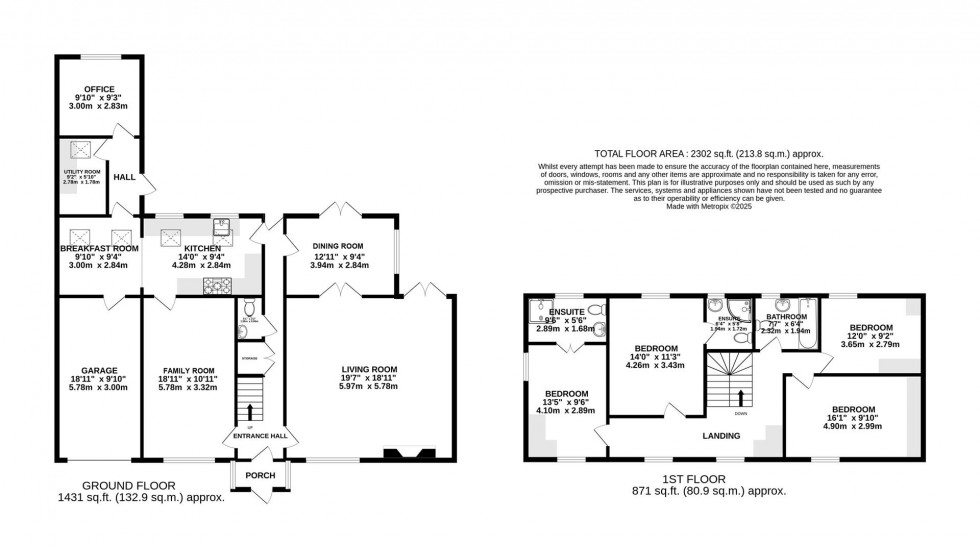
On the ground floor is a central entrance hall with large understairs cupboard and cloakroom WC. There is an impressive living room with large, exposed brick fireplace with log burning stove, original beams and French doors opening to the garden. The bright breakfast kitchen has shaker style units, wooden worksurfaces with Belfast sink and large Rangemaster stove, there is a built-in breakfast seat and four Velux windows flooding the room with natural light.

In addition, on the ground floor is the dining room, snug, office, utility room and integral garage with electric door.

To the first floor is the spacious landing with charming porthole windows and the impressive principal bedroom with vaulted ceilings and en-suite shower room. There are three further double bedrooms and two bathrooms (1 en-suite).

Externally the property is approached via a shared central courtyard with gravel driveway and turning circle. Old Barn has ample parking for several vehicles and electric car charger.

To the rear are stunning mature gardens with a stone flagged patio, lawn and well stocked beds and mature trees. There is a summer house and the garden enjoys superb open views across the neighbouring countryside.

Old Barn is situated in a idyllic rural position in an enclave of only a handful of homes with beautiful local walks across the Dane Valley and to the Swettenham Arms. The Centres of Holmes Chapel and Congleton are within easy reach which offer everything for day to day needs, local train stations and access to the motorway network.

Important Information

-

What 3 Words – ///publish.genius.residual

Council Tax – Cheshire East Band G

EPC Rating – E (50/72)

Tenure – Freehold

Heating: Oil Fired Central Heating

Services: Mains Electric & Water, Drainage via septic tank (non-compliant)

Parking: Driveway & Garage
Flood Risk*: Very low risk of flooding

Broadband**: Ultrafast broadband available at the property

Mobile Coverage**: Mobile coverage with main providers (EE, O2, Three & Vodafone).

* Information provided by GOV.UK
**Information provided by Ofcom checker.

The information isn't guaranteed. Andrew J Nowell take no responsibility for inaccuracies and advise potential buyers to do their own checks before committing to purchase.

Floorplan for Davenport Mews, Davenport
EPC Graph for Davenport Mews, Davenport

Book a Viewing


Get in touch to discuss this property

phone 01625 585905

email mail@andrewjnowell.co.uk

MORE DETAILS

PRINT DETAILS

sold by Andrew J Nowell

Looking to sell or let your property?

REQUEST A VALUATION