3 Bedroom House Sold Subject to Contract
Warford Crescent, Alderley Edge

Guide Price £450,000 | 3   1   1  
Share:
A spacious semi-detached home with great potential for modernisation and extension (subject to the necessary consent). With a generous garden in this idyllic semi-rural position.

Situated on this charming semi-rural crescent this home offers spacious accommodation in need of modernisation.

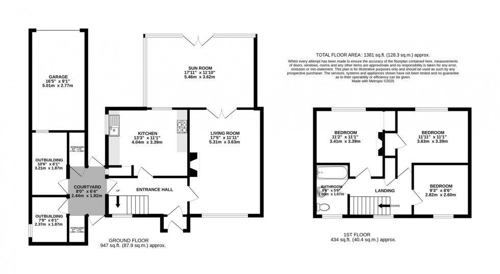
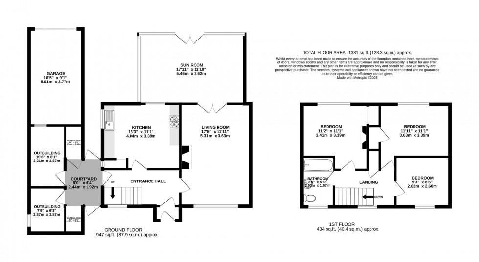
On the ground floor is an entrance hall, living room with central fireplace, kitchen/breakfast room and large sunroom with French doors opening to the garden.

To the first floor are three well-proportioned bedrooms and the family bathroom.

To the side of the house are various brick-built outbuildings which could be easily incorporated into the footprint of the ground floor along with a single garage.

There is huge potential for modernisation and extension (subject to the necessary consent) and a great opportunity to create a spacious family home.

Externally the property boasts a large garden with lawn and mature trees and borders. There is off road parking to the bottom of the garden and a second detached garage.

Situated on this popular semi-rural crescent, the house has a delightful outlook over the neighbouring countryside.

The more comprehensive centre of Alderley Edge is within a short drive and offers everything for day-to-day needs along with the local train station with links to Manchester and London.

The property is offered for sale with no onward chain

Important Information

-

What 3 Words – ///boater.insert.splashes

Council Tax – Cheshire East Band D

EPC Rating – F

Tenure – Freehold

Heating: Electric Storage heaters (Gas supply is nearby)

Services: Mains Electric, Water & Drainage

Parking: Driveway & Garage

Flood Risk*: Very low risk of flooding

Broadband**: Superfast broadband available

Mobile Coverage**: Mobile coverage with main providers (EE, O2, Three & Vodafone) limited coverage indoors.

* Information provided by GOV.UK
**Information provided by Ofcom checker.

The information isn't guaranteed. Andrew J Nowell take no responsibility for inaccuracies and advise potential buyers to do their own checks before committing to purchase.

Floorplan for Warford Crescent, Alderley Edge
EPC Graph for Warford Crescent, Alderley Edge

Book a Viewing


Get in touch to discuss this property

phone 01625 585905

email mail@andrewjnowell.co.uk

MORE DETAILS

PRINT DETAILS

sold by Andrew J Nowell

Looking to sell or let your property?

REQUEST A VALUATION