3 Bedroom House - Semi-Detached Sold Subject to Contract
Bailey Road, Wilmslow

Guide Price £425,000 | 3   2   1  
Share:
Located within the Heathfield Farm development 22 Bailey Road occupies a desirable position overlooking the green space and close to the park.

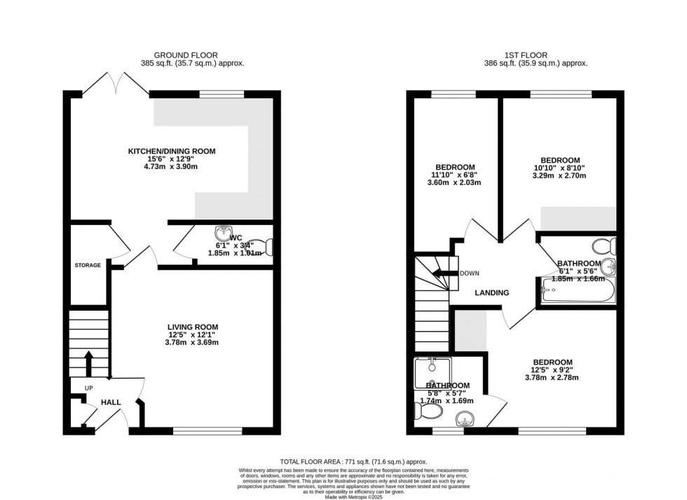
Offering well-balanced accommodation, on the ground floor is the entrance hall with cloaks cupboard. From the hall is the living room which opens through to the open plan kitchen/dining room. The kitchen has modern gloss units and Quartz worksurfaces and integrated appliances with double French doors opening onto the garden. There is a large understairs cupboard/pantry and downstairs WC.

To the first floor is a central landing with the principal bedroom with built in wardrobes and en-suite shower room. There are two further bedrooms and the family bathroom. Both bathrooms have contemporary fittings and modern tiling.

Externally the property is approached via a driveway offering parking for two cars and an electric charging point.

To the rear is a good-sized garden with two stone flagged patios (one with covered pergola), lawn, raised beds with wooden sleepers and large shed offering ample storage.

Important Information

-

What 3 Words – ///means.dogs.globe

Council Tax – Cheshire East Band D

EPC Rating – B (84/96)

Tenure – Freehold
Estate Charge £18.84 per month

Heating: Gas Fired Central Heating

Services: Mains Gas, Electric, Water & Drainage

Parking: Driveway

Note: The seller of the property is an employee of Andrew J Nowell & Company

Flood Risk*: High risk of flooding from surface water. Very low risk of flooding from rivers and seas.

Broadband**: Ultrafast broadband available

Mobile Coverage**: Mobile coverage with main providers (EE, O2 & Vodafone) limited coverage indoors. (Limited to no coverage with Three)

* Information provided by GOV.UK
**Information provided by Ofcom checker.

The information isn't guaranteed. Andrew J Nowell take no responsibility for inaccuracies and advise potential buyers to do their own checks before committing to purchase.

Floorplan for Bailey Road, Wilmslow
EPC Graph for Bailey Road, Wilmslow

Book a Viewing


Get in touch to discuss this property

phone 01625 585905

email mail@andrewjnowell.co.uk

MORE DETAILS

PRINT DETAILS

sold by Andrew J Nowell

Looking to sell or let your property?

REQUEST A VALUATION