4 Bedroom House - Semi-Detached Sold Subject to Contract
Heyes Lane, Alderley Edge

Guide Price £950,000 | 4   2   3  
Share:
Carefully and tastefully renovated and remodelled by the current owners this home offers spacious and versatile accommodation set across three floors.

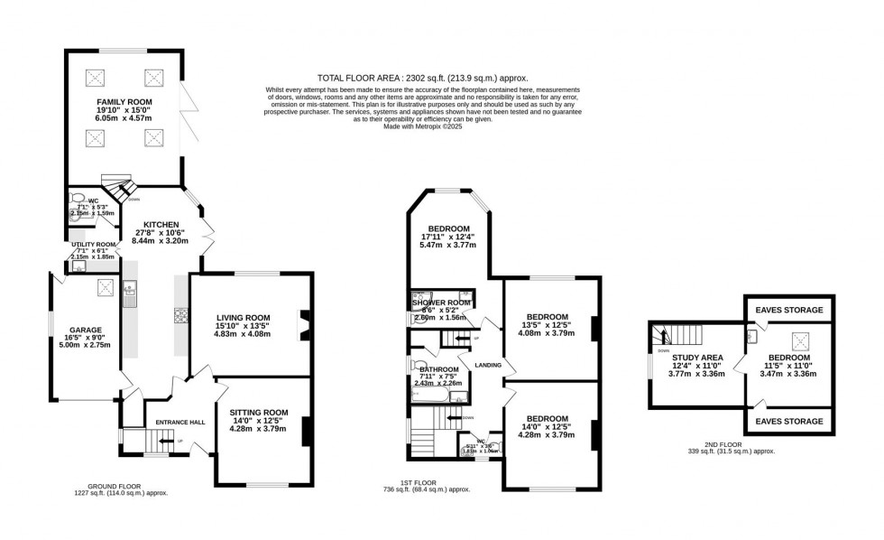
On the ground floor a feature of particular note is the stunning open plan living dining kitchen. The kitchen has shaker style units, granite worksurfaces and integrated appliances which opens through to a dining area with French doors and steps down into the bright and spacious family area with bi-folding doors opening onto the garden.

In addition, on the ground floor is the entrance hall, sitting room, living room (with central fireplace), utility room with cloakroom WC off, pantry and integral garage with storage area above.

To the first floor is the principal bedroom with en-suite shower room, two further double bedrooms, family bathroom and separate WC. To the second floor is a landing/study area, fourth bedroom and ample eaves storage.

Externally the property is approached via a driveway offering ample parking and leading to the integral garage.

There are immaculately landscaped gardens to the rear which enjoy a sunny southerly aspect. There is a large stone flagged patio accessed from both the dining and family area, lawn and charming mature trees and borders. There are delightful views up onto The Edge.

Situated just a short walk from the village centre which offered everything for day to day needs along with the local train station with links to Manchester and London.

Important Information

-

What 3 Words – ///retain.ending.edges

Council Tax – Cheshire East Band F

EPC Rating – D (62/76)

Tenure – Leasehold – 906 Years Remaining

Heating: Gas Fired Central Heating

Services: Mains Gas, Electric, Water & Drainage

Parking: Driveway & Garage

Flood Risk*: Very low risk of flooding

Broadband**: Ultrafast broadband available at the property.

Mobile Coverage**: Mobile coverage with main providers (EE, O2, Three & Vodafone).

* Information provided by GOV.UK
**Information provided by Ofcom checker.

The information isn't guaranteed. Andrew J Nowell take no responsibility for inaccuracies and advise potential buyers to do their own checks before committing to purchase.

Floorplan for Heyes Lane, Alderley Edge
EPC Graph for Heyes Lane, Alderley Edge

Book a Viewing


Get in touch to discuss this property

phone 01625 585905

email mail@andrewjnowell.co.uk

MORE DETAILS

PRINT DETAILS

sold by Andrew J Nowell

Looking to sell or let your property?

REQUEST A VALUATION