3 Bedroom House - Detached Sold Subject to Contract
The Circuit, Alderley Edge

Guide Price £595,000 | 3   1   2  
Share:
An immaculately presented detached home situated on this secluded road with open rear aspect within walking distance of Alderley Edge village.

34 The Circuit has been immaculately maintained by the current owners and offers spacious and well-balanced accommodation throughout.

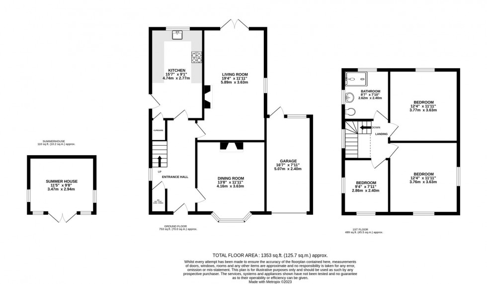
On the ground floor is a spacious entrance hall, cloakroom WC, dining room with feature fireplace and bay window, living room with double French doors to the garden and the breakfast kitchen with shaker style units, granite worksurfaces and integrated NEFF appliances. In addition, there is an attached garage.

To the first floor are three well- proportioned bedrooms and the family bathroom. The bathroom which has recently been refitted has a large walk-in shower, contemporary fittings, and bespoke tiling.

The property benefits from UPVC double glazing. Offers scope to extend subject to the relevant planning consent.

Externally the property is approached via a brick driveway which offers ample off road parking for several vehicles and leads to the attached garage.

To the rear is an immaculately landscaped garden with large stone flagged patio, pond, lawned area and trees and shrubs. There is also a detached summer house which is insulated and has light and power and is currently utilised as an office.

The property is located on this popular road within walking distance of Alderley Edge village, there is direct access to the adjoining park and children’s play area.

Alderley Edge village offers a good range of shopping including the Waitrose supermarket, stylish boutiques and fine restaurants. The area is renowned for its excellent schooling and The Edge is a well-known beauty spot of historical importance with excellent walks. The motorway network system is within easy access, as is Manchester International Airport, local and commuter rail links to Manchester and London.

The property is immaculately presented and a personal inspection is highly recommended.

Important Information

What 3 Words – ///pocket.shell.stand

Council Tax – E

EPC Rating – D

Tenure – Freehold

Heating: Gas Fired Central Heating

Services: Mains Gas, Electric, Water & Drainage

Parking: Driveway & Garage

Flood Risk*: Very Low Risk of flooding

Broadband**: Superfast broadband available at the property.

Mobile Coverage**: Mobile coverage with main providers (EE, O2, Three & Vodafone) limited coverage indoors.

* Information provided by GOV.UK
**Information provided by Ofcom checker.

The information isn't guaranteed. Andrew J Nowell take no responsibility for inaccuracies and advise potential buyers to do their own checks before committing to purchase.

Floorplan for The Circuit, Alderley Edge
EPC Graph for The Circuit, Alderley Edge

Book a Viewing


Get in touch to discuss this property

phone 01625 585905

email mail@andrewjnowell.co.uk

MORE DETAILS

PRINT DETAILS

sold by Andrew J Nowell

Looking to sell or let your property?

REQUEST A VALUATION