5 Bedroom House - Detached Sold Subject to Contract
School Lane, Henbury

Guide Price £1,195,000 | 5   4   3  
Share:
A charming period detached home which has been completely renovated by the current owners and offers spacious accommodation with a wealth or original features.

The Old School House is a unique period family home which has been carefully extended by the current owners with great care taken to retain the original charm and character.

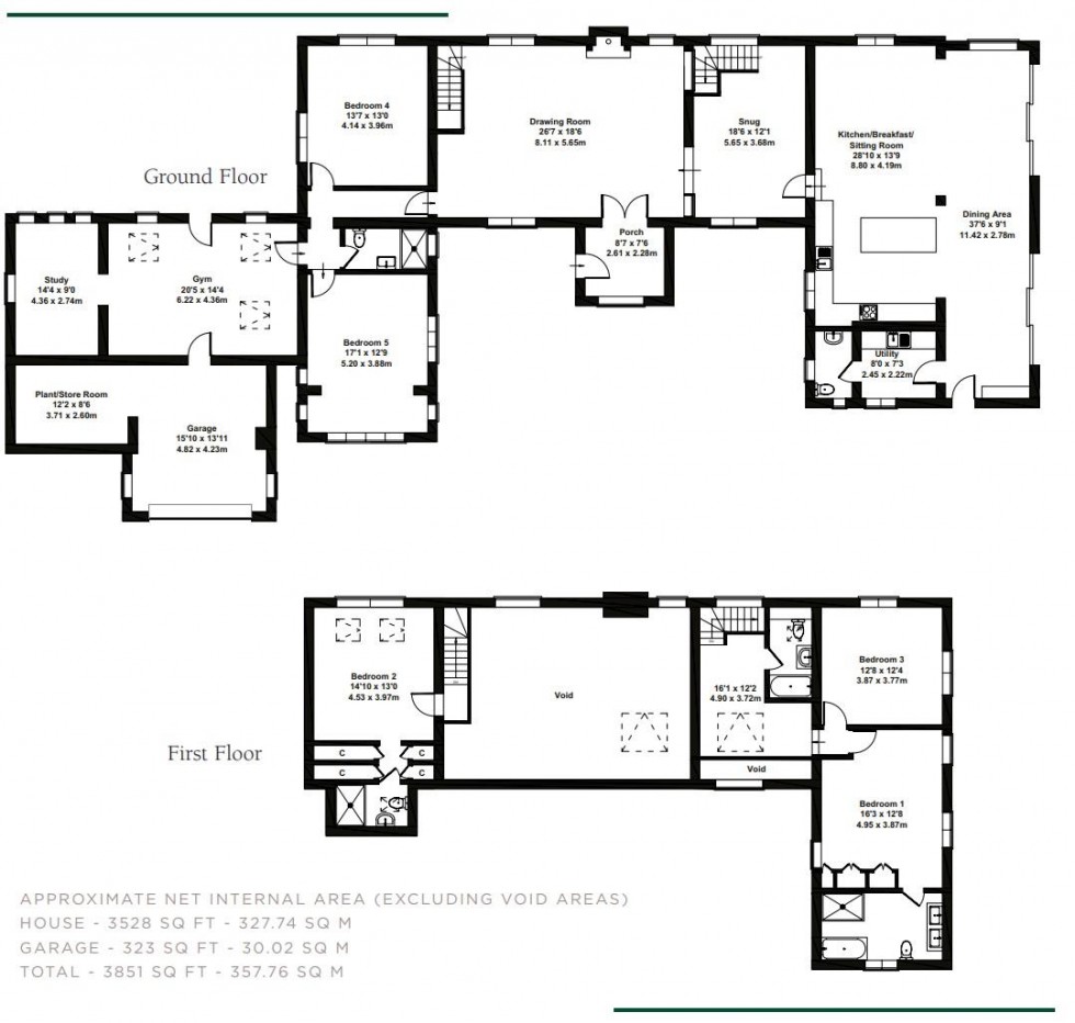
Features of particular note are the impressive double height vaulted drawing room with exposed beams and trusses and brick fireplace and the stunning open living dining kitchen. The kitchen has traditional shaker style units, quartz worksurfaces with large central island and integrated appliances. There are two sets of large sliding doors which open onto the south facing stone flagged patio.

In addition, on the ground floor is the entrance hall, snug, gym, study, utility room, downstairs WC, two double bedrooms and a shower room.

To the first floor is the superb open principal bedroom suite with built in wardrobes and large ensuite bathroom with double sink, walk-in shower and bath. There are two further double bedrooms and two bathrooms (1 en-suite). All of the bathrooms have bespoke tiling and a mixture of contemporary and traditional fittings.

Externally the property is approached through a set of electric gates opening onto a large driveway providing off road parking for several vehicles and leading to the integrated garage/plant room with electric garage door.

The generous gardens and grounds which extend to over 0.8 acres wrap around the house and consist of an orchard, large, manicured lawns with mature trees and borders and a large south facing stone flagged patio enjoying stunning open views across the neighbouring countryside.

The Old School House is situated in the idyllic semi-rural village of Henbury. Henbury has the period church, local public house and wonderful walks across the surrounding countryside. Alderley Edge village is within 5 minutes drive. Alderley village offers a good range of shopping including the Waitrose supermarket, stylish boutiques and fine restaurants.

The area is renowned for its excellent schooling and The Edge is a well-known beauty spot of historical importance with excellent walks. The motorway network system is within easy access, as is Manchester International Airport, local and commuter rail links to Manchester and London.

Important Information

What 3 Words – ///dare.challenge.wealth

Council Tax – G

EPC Rating – E

Tenure – Freehold

Heating: LPG Fired Central Heating

Services: Mains Electric & Water, Drainage via sewage treatment plant.

Parking: Driveway & Garage

Flood Risk*: Very low risk of flooding

Broadband**: Ultrafast broadband available

Mobile Coverage**: Mobile coverage with main providers (EE, O2, Three & Vodafone). Limited coverage indoors.

* Information provided by GOV.UK
**Information provided by Ofcom checker.

The information isn't guaranteed. Andrew J Nowell take no responsibility for inaccuracies and advise potential buyers to do their own checks before committing to purchase.

Restrictive Covenant

-

Please note there are restrictive covenants which affect this property.

1.) That the Purchasers will not at any time hereafter call or designate any building erected on the property hereby conveyed or on some part thereof or permit the same to be called or designated by any name which might suggest that the said property is owned or occupied by the incumbent for the time being of the parish in which the property is situate.

2.) Neither the property hereby conveyed or any part thereof nor any existing or future building there on or on any part thereof shall at any time hereafter be used as or for a place of amusement hotel tavern inn or public house nor shall any spirituous or fermented liquors at any time be sold in or upon the same property or any part thereof and that no act deed matter or thing shall at any time be done suffered or permitted in or upon the property hereby conveyed or any part thereof which may be or become a nuisance or an annoyance or disturbance to the Vendor or its successors or which may tend to depreciate or lessen the value of the adjoining or neighbouring property

Floorplan for School Lane, Henbury
EPC Graph for School Lane, Henbury

Book a Viewing


Get in touch to discuss this property

phone 01625 585905

email mail@andrewjnowell.co.uk

MORE DETAILS

PRINT DETAILS

sold by Andrew J Nowell

Looking to sell or let your property?

REQUEST A VALUATION